Hledáte nemovitost, která v sobě spojuje kouzlo historie, krásu krkonošské přírody i potenciál do budoucna?
Pak vás zaujme tato historická usedlost z roku 1815 v obci Prosečné. Místo, kde se setkává autenticita starých časů s prostorem pro nový život, podnikání nebo rekreaci.

přední pohled
Prosečné leží v srdci Podkrkonoší, v kraji čistého vzduchu, rozlehlých luk a výhledů na vrcholky hor. Obec má příjemnou atmosféru menší vesnice, přesto s výbornou dostupností – Trutnov, Vrchlabí či Dvůr Králové jsou vzdálené jen několik minut jízdy.
V blízkosti se nachází golfové hřiště, cyklostezky i turistické trasy. A pokud milujete hory, lyžování nebo klid zimní krajiny, budete nadšeni. Tady se totiž venkovská idyla snoubí s rekreačním potenciálem. V okruhu 10 km naleznete několik kvalitních ski areálů, například Rudník, Mostek, Černý Důl nebo Janské Lázně. Hned na pomezí Prosečného a Hostinného navíc vzniká nová studie rodinného lyžařského areálu, který lokalitě přidá další rozměr.




obec Prosečné a pohledy shora
Usedlost z roku 1815 dodnes vyzařuje klid, pevnost a kouzlo doby, kdy se stavělo poctivě a srdcem. Dům je v původním stavu před rekonstrukcí, což umožňuje novému majiteli vtisknout mu vlastní styl – od citlivé obnovy historického rázu až po moderní adaptaci s respektem k původní architektuře.
Jedná se o jednopodlažní stavbu s tradičními okny a sedlovou střechou, která jí propůjčuje klasickou siluetu venkovského domu. Usedlost je z části podsklepená a nabízí také prostornou půdu, která přímo vybízí k přeměně v útulné obytné podkroví s výhledem do krajiny.



boční a zadní pohled
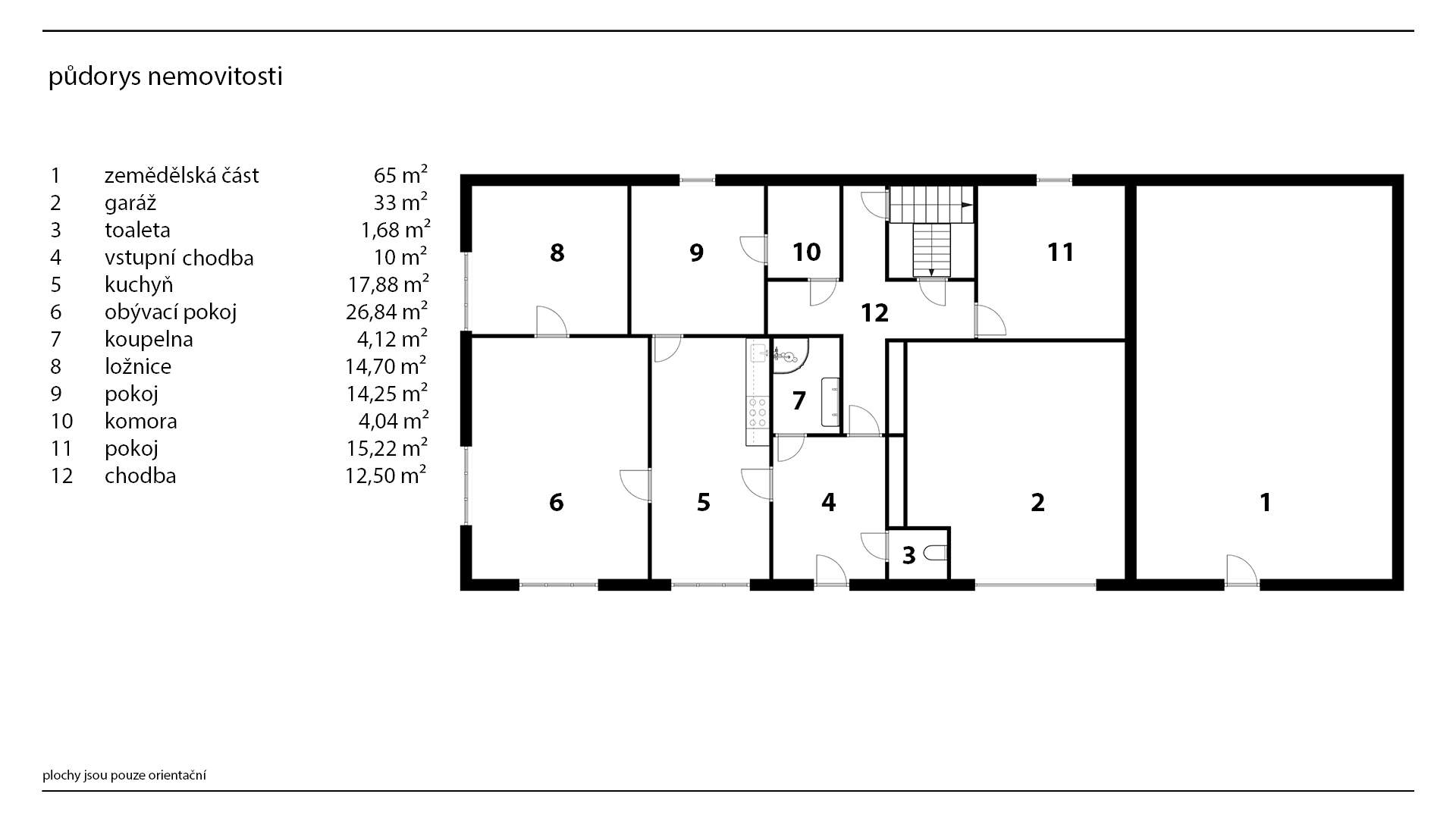
Nemovitost tvoří jeden harmonický celek rozdělený do tří částí – obytnou část, prostornou garáž s dílnou a hospodářské zázemí, které kdysi sloužilo pro chov zvířat. Každá z těchto částí má samostatný vstup, což otevírá široké možnosti budoucího využití – od rodinného sídla po ubytování či ateliérový prostor.
Zastavěná plocha činí cca 307 m² a k domu patří pozemek o rozloze 1 364 m² s dostatkem prostoru kolem domu pro parkování, dvorek i venkovní posezení.
Zahrada volně navazuje na sousední nezastavěné pozemky, které jsou dle územního plánu určené k zástavbě. V případě zájmu lze zprostředkovat i jejich prodej a vytvořit tak jeden celek o celkové výměře až 3 419 m² – ideální pro rozšíření usedlosti nebo rozvoj dalšího projektu.

předmět prodeje s vyznačením možného rozšíření
Technické parametry
| Plocha pozemku | 1 364 m2 + možnost rozšíření o sousední zastavitelné parcely až na celkových 3 419 m2  | 
| Zastavěná plocha | 307 m2 | 
| Užitná plocha | obytná část – cca 120 m2 garáž/dílna – cca 33 m2 hospodářská část – cca 65 m2  | 
| Počet podlaží | jednopodlažní dům se sklepem a půdou | 
| Dispozice obytné části | 5+1 | 
| Stav | původní, určeno k rekonstrukci | 
| Konstrukce domu | smíšená (cihla, vápenec, kámen) | 
| Konstrukce střechy | plechová sedlová střecha s imitací pálených tašek, krytina položena před několika lety nová | 
| Voda | veřejný vodovod | 
| Elektřina | připojeno | 
| Plyn | připojeno | 
| Odpady | ČOV | 
| Vytápění a ohřev vody | plynový kotel | 
| Energetická náročnost budovy | PENB nedodán – uvádíme G | 
V obytné části domu se nachází šest místností, koupelna a toaleta na užitné ploše cca 120 m2. Vstupní dveře vás zavedou do prostorné chodby, z níž se doleva otevírá vstup do první místnosti – původní kuchyně. Je to srdce domu, prostor, který kdysi naplňovala vůně čerstvě upečeného chleba. Díky svému umístění přímo v centru domu může být ideálním základem pro novou, prostornou kuchyň s jídelním koutem, kde se budou scházet rodina i přátelé.



kuchyně


vizualizace možného budoucího stavu
Průchodem dále se dostáváme do největší místnosti celého domu – salonu, který je rohový s okny ze dvou stran a tudíž zaplavený denním světlem. Tento pokoj okamžitě zaujme svou velikostí, atmosférou a výhledem ven. Nabízí nekonečné možnosti využití – může se stát hlavním obývacím prostorem s krbem, knihovnou nebo společenskou místností, která si zachová původní duši, ale získá novou eleganci a pohodlí.


obývací pokoj

vizualizace možného budoucího stavu
Na tuto místnost navazuje menší pokoj, dříve využívaný jako ložnice. Díky své poloze v zadní části domu a příjemnému světlu ze zahrady je ideální pro vytvoření ložnice, dětského pokoje nebo hostinského zázemí.


ložnice za obývacím pokojem

vizualizace možného budoucího stavu
Vzadu za kuchyní se nachází ještě dva menší pokoje, které dohromady skvěle poslouží jako klidná pracovna se skladem, či pokoj se šatnou.


pokoje za kuchyní
V chodbě se po pravé straně nachází samostatná toaleta a dále v čele chodby stojí koupelna, připravená na kompletní modernizaci. Obě místnosti lze při rekonstrukci snadno přetvořit na funkční a estetické zázemí pro každodenní život, aniž by se narušil původní ráz celé stavby.

vstupní chodba


koupelna a WC
Na vstupní chodbu dále navazuje chodba do zadní části přízemí, nabízející technické zázemí a vstupy na půdu i do sklepa. Tato část nabízí obrovský potenciál – z půdy lze vybudovat obytné podkroví s výhledem do krajiny, zatímco sklep může posloužit jako vinárna, sklad potravin či wellness zóna s kamennými klenbami a původními stěnami, které si zachovaly přirozený chlad.



zadní chodba, technické zázemí, sklep


půda
Na samotném konci domu pak naleznete poslední velký pokoj, odkloněný lehce stranou. Tento prostor, původně hospodářského charakteru, si přímo říká o přeměnu – může z něj vzniknout ateliér, dílna, nebo další obytná jednotka.


zadní pokoj

vizualizace možného budoucího stavu
Každá místnost v tomto domě má svůj příběh, svůj rytmus a své světlo. Ačkoli usedlost čeká na kompletní rekonstrukci, její dispozice a charakter nabízejí neobyčejně tvárný základ pro vznik jedinečného domova, penzionu nebo venkovského sídla, které spojí kouzlo historie s komfortem dnešní doby.


garáž / dílna
Poslední, hospodářská část, nabízí velkorysý prostor cca 65 m2 s původními prvky, ideální pro přestavbu na druhou obytnou jednotku nebo podnikatelský záměr.



hospodářská část
Konstrukce domu je smíšená, mezi použité materiály patří cihla, vápenec či kámen. Střecha je sedlová, krytina plechová s imitací pálených tašek, která byla v průběhu posledních let položena nově.
Stavba je částečně podsklepena a nabízí rozsáhlou půdu vhodnou pro vestavbu. Je napojena na veřejný vodovod, elektřinu a plyn, odpady jsou řešeny vlastní čističkou odpadních vod. Pro ohřev vody a vytápění je zde instalován plynový kotel. Přístup je z obecní asfaltové komunikace.
Tato nemovitost je ideální pro ty, kdo hledají autentický venkovský dům s historií a duší, ale i potenciálem – nabízí možnost rekonstrukce a rozšíření či rozdělení na více částí. Díky poloze v oblíbené oblasti Podkrkonoší může být využita nejenom jako rodinný dům, ale jako rekreační chalupa, penzion či farma. Sousední stavební parcely otevírají prostor pro další výstavbu nebo rozšíření projektu do menšího areálu.



Půdorysy nemovitosti


List vlastnictví

Usedlost v Prosečné je místo, které má pevné základy a krásnou duši. Které čeká na člověka, jenž v něm uvidí potenciál, nikoliv minulost.
Pokud cítíte, že právě tady by mohl začít váš další příběh, zavolejte mi a přijďte se podívat.