Hledáte prostor pro podnikání na dobře viditelném místě s výbornou dostupností, vlastním zázemím a možností parkování? Nabízím k pronájmu komerční prostor na frekventované ulici Chrudimská v Pardubicích, který je vhodný jako sídlo firmy.
Nemovitost nabízí kombinaci obchodních prostor se vstupem z ulice, kancelářského zázemí, vedlejších budov a uzavřeného dvora se zahrádkou, což vytváří variabilní celek pro různé typy podnikání.

Ulice Chrudimská patří mezi hlavní dopravní tahy v Pardubicích a zajišťuje velmi dobrou viditelnost i dostupnost z centra města i z okolních částí. Přímo před domem se nachází autobusová zastávka, takže objekt je dobře dostupný nejen autem, ale i městskou hromadnou dopravou. Díky přímému vjezdu z ulice na pozemek a možnosti parkování ve dvoře je zajištěn komfort jak pro zaměstnance, tak pro zákazníky či dodavatele.
Objekt je vhodný jako sídlo společnosti, přičemž se počítá s tím, že nájemce může mít v nemovitosti oficiálně registrovanou firmu. Stejně tak je možné umístění firemního označení na fasádu domu či na vjezdová vrata, což bylo běžné i u předchozích uživatelů – nejčastěji formou loga na čelní a boční stěně objektu a banneru na vjezdové bráně. Díky poloze na frekventované ulici je označení velmi dobře viditelné pro projíždějící auta i pěší, což dává prostoru přirozený reklamní potenciál bez nutnosti dalších složitých úprav.
V přední části pozemku stojí hlavní dvoupodlažní budova přístupná z ulice. Za ní se nachází vydlážděný dvůr s vjezdovou branou a dále dvě samostatné jednopodlažní stavby. Úplně v zadní části pozemku je pak menší zahrada se vzrostlou zelení, která může sloužit jako odpočinková zóna pro zaměstnance i klienty. Celý areál je uzavřený a působí kompaktně, což umožňuje bezpečné a přehledné využívání všech prostor.



pohledy z ulice – vstup do prodejny / showroomu
Základní a technické informace
| Lokalita | Pardubice, ul. Chrudimská objekt přímo u autobusové zastávky „Jesničánky, točna“ |
| Součásti nemovitosti | Hlavní dvoupodlažní budova – prodejna/showroom v přízemí přístupná z ulice, zázemí a dvě kanceláře v patře Samostatná přízemí budova ve dvoře 1 – dvě průchozí kanceláře a koupelna Samostatná přízemí budova ve dvoře 2 – sklad/výroba Vjezd a parkovací plocha Zahrádka |
| Užitná plocha | Hlavní budova 91 m2 Samostatná budova kanceláří 40,4 m2 Sklad 17,4 m2 |
| Celková plocha pozemku | 414 m2 |
| Vytápění | podlahové vytápění ovládané termostaty elektrokotel |
| Možnost umístění sídla firma | ano |
| Možnost reklamního označení objektu | ano |
| K dispozici | ihned |
| Cena pronájmu | 41 000 Kč + DPH / měsíčně |
| Náklady na služby | cca 10 000 Kč / měsíčně dle náročnosti konkrétního provozu |
| Vratná kauce | jeden měsíční nájem |

pohled na hlavní budovu ze dvora – samostatný zadní vstup



dvůr a zahrada
Hlavní budova orientovaná do ulice je koncipována jako obchodní či prezentační prostor s administrativním zázemím. V přízemí se nachází prodejna či showroom přístupný přímo z chodníku, s výlohou směrem do ulice, která zajišťuje dobrou viditelnost pro kolemjdoucí i projíždějící auta.




prodejna / showroom se vstupem z ulice
Za prodejní částí je situováno zázemí tvořené kuchyňkou s pracovní linkou, varnou deskou, troubou, myčkou a dostatkem úložných skříněk, které mohou sloužit jako zázemí pro personál.




kuchyňka navazující na prodejnu
Na tuto část navazuje koupelna se sprchovým koutem, umyvadlem a toaletou, využitelná jak pro zaměstnance, tak pro klienty.




koupelna s toaletou v přízemí
Hlavní budova má také druhý, zadní vstup ze dvora, vhodný zejména pro zaměstnance pro vstup rovnou do zázemí či horního patra.
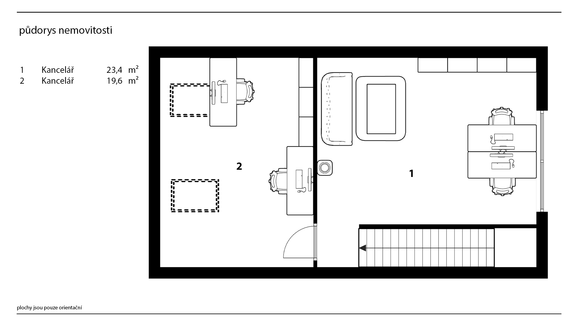
Po schodišti se dostanete do druhého podlaží, kde se nacházejí dvě samostatné místnosti vhodné jako kanceláře, jednací místnosti nebo další obchodní prostory. Dispozice patra umožňuje oddělené fungování jednotlivých částí firmy, případně kombinaci administrativy a obchodního provozu. Díky umístění nad prodejnou působí patro klidněji a je vhodné pro práci, která vyžaduje soustředění.



zadní vstup do hlavní budovy a schodiště do druhého patra



první kancelář v patře




druhá kancelář v patře
Za hlavní budovou se nachází vydlážděný dvůr, který umožňuje pohodlný příjezd autem až do areálu a parkování několika vozidel. Dvůr zároveň propojuje další dvě stavby umístěné v zadní části pozemku, které rozšiřují možnosti využití celého objektu.
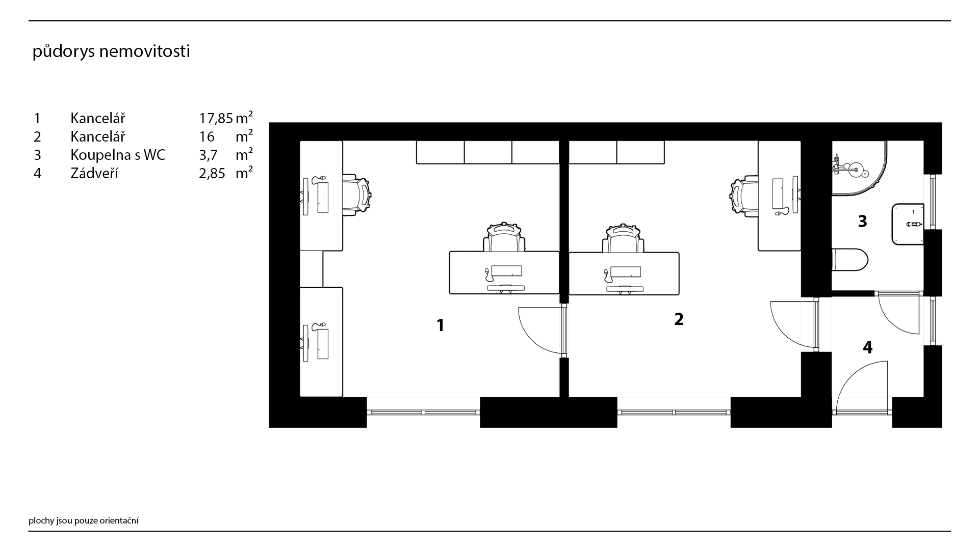
První z těchto staveb je jednopodlažní budova rozdělená na dvě průchozí místnosti a koupelnu se sprchou, umyvadlem a toaletou. Prostory mohou sloužit jako další kanceláře, sklad, dílna, servisní zázemí nebo menší provozovna. Díky oddělení od hlavní budovy je možné tuto část využívat samostatně, například pro jiný provoz nebo oddělené pracoviště.

vlevo – samostatná přízemní budova s dalšími dvěma kancelářemi a koupelnou



první kancelář



druhá kancelář



koupelna
Druhou stavbu ve dvoře tvoří samostatná vydlážděná místnost, vhodná jako dílna, sklad, montážní místnost nebo jednoduchá výroba, případně jako technické zázemí firmy. Výhodou je samostatné umístění ve dvoře, které umožňuje provoz bez rušení hlavní části objektu. Na konci objektu se navíc nachází ještě samostatná kůlna, pro další úložné prostory.


samostatný skład / dílna / výroba
Úplně v zadní části pozemku se nachází menší zahrada se vzrostlými stromy a zpevněnou plochou vhodnou pro posezení. Tento prostor může sloužit jako klidová zóna pro zaměstnance, místo pro krátký odpočinek během pracovního dne nebo jako doplňkové zázemí firmy. Přítomnost zeleně dodává celému areálu příjemnější atmosféru, což není u komerčních objektů samozřejmostí.



zahrada
Objekt je zateplený, má plastová okna a je napojený na veřejný vodovod i kanalizaci, vytápění zajišťuje elektrokotel. Topení je rozvedeno podlahově a ovládáno termostaty v jednotlivých místnostech. Stav nemovitosti umožňuje okamžité užívání, zároveň ale nabízí prostor pro úpravy podle konkrétních potřeb nájemce. Díky kombinaci obchodního prostoru do ulice, kanceláří, vedlejších budov a uzavřeného dvora je objekt vhodný pro široké spektrum využití – od showroomu a prodejny přes sídlo firmy až po servis, sklad nebo jednoduchou výrobu.
Samozřejmostí je možnost umístit do nemovitosti sídlo společnosti a využít fasádu domu či vjezdovou bránu k venkovnímu označení firmy, které je díky poloze na frekventované ulici velmi dobře viditelné a může sloužit i jako přirozená reklama.
Půdorysy hlavní budovy – přízemí


Půdorysy hlavní budovy – patro


Půdorysy vedlejší budovy – kanceláře


Půdorysy vedlejší budovy – sklad / výroba


Tato nemovitost je ideální pro firmu, která hledá viditelné místo na hlavním tahu, potřebuje vlastní zázemí a ocení možnost mít obchod, kanceláře i provoz na jednom pozemku. Pokud hledáte prostor, který se dokáže přizpůsobit vašemu podnikání a zároveň nabídne dobrou dostupnost i reprezentativní umístění, ozvěte se a domluvte si prohlídku.