K prodeji nabízíme novostavbu zkolaudovanou na jaře r. 2024 v Sezemicích – moderní bydlení s mnoha výhodami.

Hledáte nový domov pro svou rodinu, kde si každý člen bude užívat komfort a soukromí? Právě tato novostavba v Sezemicích by mohla být ta pravá pro vás a splnit všechny vaše požadavky na moderní bydlení.
| Lokalita | Sezemice u Pardubic |
| Dispozice domu | 4kk |
| Výměra domu | 78 m² |
| Výměra pozemku | 114 m² |
| Kolaudace | na jaře 2024 |
| Technologie | → tepelné čerpadlo → okna s izolačním trojsklem → předokenní žaluzie → klimatizace v každé místnosti → termostaty pro regulaci teploty → podlahové vytápění → bezfalcové dveře s magnetickými zámky → moderní, vybavená kuchyně a mnoho dalšího |
Rodinný dům se nachází v klidné části Sezemic, v oblasti s výbornou dostupností do města, v blízkosti škol, obchodů a veškeré občanské vybavenosti. Vnitřní prostory domu jsou navrženy s důrazem na funkčnost a estetiku. Moderní a čisté linie interiéru společně s vysoce kvalitními materiály zaručují, že se do domu budete rádi vracet.

Pohled na dům včetně parkovacího stání před domem.
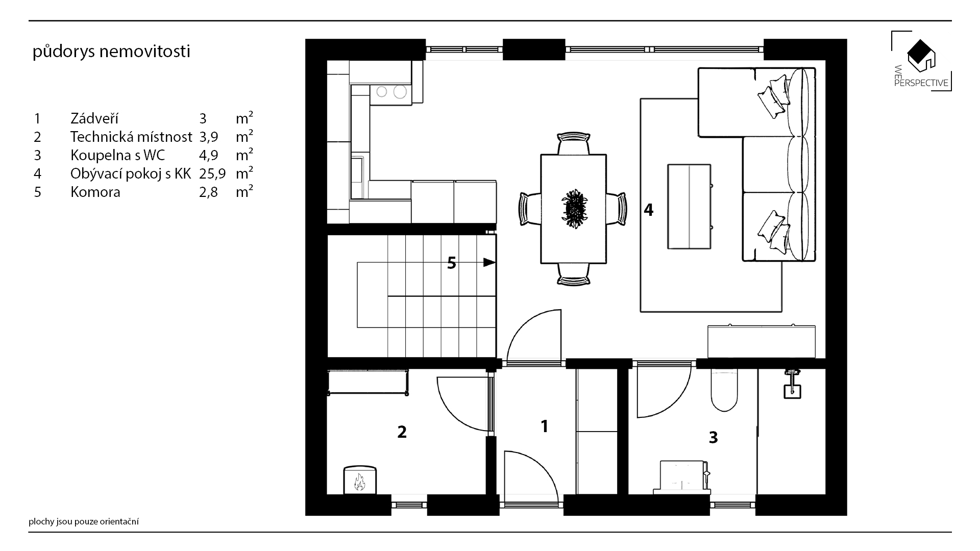
Dvoupodlažní dům s dispozicí 4+kk a celkovou výměrou 78 m² poskytuje prostorný a funkčně řešený interiér, který vyhoví i těm nejnáročnějším požadavkům na kvalitní bydlení. Nemovitost se pyšní dvěma luxusně vybavenými koupelnami a podlahovým vytápěním značky Fenix, což zajišťuje efektivní a rovnoměrné vytápění v celém domě. Pro maximální komfort během letních měsíců je v každém pokoji instalována klimatizace, která v zimním období i topí. Okna s izolačním trojsklem garantují výbornou termoakustickou izolaci a předokenní žaluzie nejen chrání před sluncem, ale zvyšují i soukromí. Dům je napojený na veřejnou kanalizaci.
Přízemí
Centrálním bodem domu je rozlehlý obývací pokoj s kuchyňským koutem a vstupem na zahradu. Kuchyňská linka disponuje dostatečným úložným prostorem a moderními spotřebiči. Celý prostor je navržen tak, aby kombinoval funkčnost s estetickým designem, čímž vytváří dokonalé místo jak pro vaření, tak i pro společné chvíle s rodinou či přáteli.
V přízemí domu je dále technická místnost se zázemím, moderní koupelna se sprchovým koutem a toaletou a co jistě oceníte, tak je praktická spíž umístěná pod schodištěm.





Obývací pokoj s kuchyní a vstupem na zahradu, plus jeho vizualizace s nábytkem.

Zařízená, moderní kuchyně.



Kuchyňská linka včetně všech spotřebičů.


Koupelna se sprchovým koutem a toaletou v přízemí.

Vstupní hala s prostorem pro šatní skříň s botníkem.


Technická místnost v přízemí s přívodem vody k zapojení pračky a sušičky. Vstup je ze vstupní haly.
Druhé podlaží
V patře jsou tři samostatné pokoje, koupelna s vanou, toaletou a dále se zde dostanete do půdních prostor s možností dalšího uložení věcí. I zde nechybí podlahové vytápění a klimatizace v každé místnosti.


Druhé podlaží domu, kde se nalézají tři samostatné pokoje a druhá koupelna s vanou a toaletou.



Pokoj – ložnice a jeho vizualizace s nábytkem.



Druhý pokoj a jeho vizualizace.


Třetí pokoj.


Koupelna s vanou a toaletou v druhém podlaží domu.

Teplotu v domě můžete regulovat na zabudovaném termostatu, který je v každé místnosti.
Přestože zahrada není rozsáhlá, poskytuje dostatečný prostor pro relaxaci a je uspořádána tak, aby zajistila maximální soukromí.




Klimatizace, ale i předokenní žaluzie jsou zde samozřejmostí.

Pohled na dům a zahradu.
3D půdorysy
2D půdorysy
PENB – průkaz energetické náročnosti budovy
Výpis z katastru nemovitostí – prodávaná nemovitost
Pokud vás nabídka této nemovitosti zaujala, zavolejte nebo napište. Budu se těšit.