Hledáte nový rodinný dům kousek od Prahy, který nabídne moderní technologie, praktické dispoziční řešení a klidné zázemí malé obce?
Právě teď vznikají ve Všedobrovicích dva dvojdomy, tedy čtyři rodinné domy k prodeji. Pokud hledáte místo, kde můžete začít novou životní kapitolu v domě vonícím novotou, s vlastní zahradou a parkováním, může být právě tohle ono.



Dům A – V NABÍDCE
Dům B – V NABÍDCE
Dům C – PRODÁNO
Dům D – REZERVOVÁNO

aktuální stav prodeje
Lokalita
Všedobrovice jsou malá obec v okrese Praha-východ, přibližně 30 kilometrů od centra Prahy. Nabízejí přesně ten typ klidu, který po pracovním dni oceníte – minimum ruchu, okolní zeleň, rybníky přímo v obci a příjemná atmosféra. Jen 1,5 kilometru odsud leží Štiřín s rozsáhlým rybníkem ideálním pro procházky a trávení volného času, wellness hotelem Štiřínská stodola a také se zámkem Štiřín obklopeným krásným parkem a soustavou dalších rybníků.
Kompletní občanskou vybavenost najdete v nedaleké Kamenici vzdálené 4 kilometry – obchody, restaurace, služby i další infrastrukturu. V obci je autobusová zastávka v rámci Pražské integrované dopravy a přibližně 10 minut jízdy autem se nachází železniční stanice Strančice. Do centra Prahy se dostanete autem zhruba za 30 až 40 minut podle aktuální dopravy, což z této lokality dělá ideální kompromis mezi městem a venkovem.



současný stav ve výstavbě
Základní informace
Dům nabídne dispozici 4+kk rozdělenou do dvou podlaží o celkové užitné ploše 123 m². Má vlastní zahradu, dvě venkovní parkovací stání a podíl na společné příjezdové komunikaci. Oddělení zahrad je řešeno kaskádovitě, parkovací stání jsou přidružená odděleně k danému domu – přední dům je má v přední části pozemku, zadní dům má svá dvě stání vzadu.
Stavebně má každý dům vlastní základovou desku i vlastní obvodové stěny a mezi nimi je prostor vyplněn akustickým izolantem, což zajišťuje maximální soukromí a minimalizaci přenosu hluku mezi sousedy. Stejně tak má každý dům vlastní technické zázemí.
Dům bude předán kompletně dokončený na klíč, včetně oplocení, zámkové dlažby a upravené zahrady. K dokončení bude zbývat pouze kuchyňská linka, kterou si nový majitel zvolí podle vlastního vkusu. V případě, že se kupující rozhodne pro rezervaci v průběhu výstavby, je navíc možné se u vybraných ještě nedokončených prvků standardu individuálně domluvit.
Interiéry budou dokončeny v bílých malbách, s vinylovými podlahami v dekoru dubu a bílými obložkovými bezfalcovými dveřmi, přičemž vnitřní schodiště bude z masivu.
Technické parametry
| Celková plocha pozemku | dům A – 510 m2 dům B – 434 m2 dům C – 509 m2 dům D – 438 m2 |
| Užitná plocha domu | 123 m2 |
| Dispozice domu | 4+kk |
| Počet podlaží | dvě nadzemní |
| Stav domu | novostavba – ve výstavbě bude dokončeno na klíč včetně oplocení, zámkové dlažby a upravené zahrady |
| Předpoklad dokončení | jaro / léto 2026 |
| Konstrukce domu | difuzně uzavřená dřevostavba rámová konstrukce z KVH hranolů opláštění desky Farmacell izolace 140 mm |
| Fasáda | silikonová omítka zateplena polystyrenem 200 mm béžový nátěr |
| Střecha | betonová krytina Betonpres úhlově černá |
| Okna | REHAU izolační trojskla antracitová příprava na předokenní žaluzie střešní okno Velux, trojsklo, bílý PVC rám |
| Vchodové dveře | hliníkové zateplený rám |
| Interiérové dveře | bílé obložkové bezfalcové |
| Interiérové schodiště | z masivu |
| Interiérová výmalba | bílá |
| Interiérové podlahy | vinylová podlaha Experto click 50 SPC barva dub bari |
| Koupelnové obklady | 60 x 60 cm slonová kost |
| Koupelnové dlažby | 60 x 60 cm tmavě béžová |
| Sanita | spodní koupelna: WC, walk-in sprchový kout 90 x 90 cm, umyvadlo horní koupelna: WC, vana 170 cm, umyvadlo |
| Vytápění | tepelné čerpadlo Stiebel Eltron teplovodní podlahové vytápění podlahové chlazení ovládání termostatem včetně dálkového ovládání |
| Zdroj vody | napojeno na veřejný vodovod |
| Odpadní hospodářství | napojeno na veřejnou kanalizaci |
| Třída energetické náročnosti budovy | A – mimořádně úsporná |
Jedná se o difuzně uzavřenou, zateplenou dřevostavbu s rámovou konstrukcí z KVH hranolů, opláštěnou deskami Fermacell a s izolací o tloušťce 140 mm. Fasáda je zateplena polystyrenem o síle 200 mm a opatřena silikonovou omítkou v jednolitém moderním odstínu. Střechu pokrývá betonová krytina Betonpres v uhlově černé barvě. Okna značky REHAU v antracitovém provedení jsou osazena izolačními trojskly, střešní okno Velux je rovněž v trojskle s bílým PVC rámem. Vchodové dveře jsou hliníkové se zatepleným rámem. Součástí standardu je také příprava na předokenní žaluzie.
Dům je napojen na veřejný vodovod i veřejnou kanalizaci. O vytápění a ohřev vody se stará tepelné čerpadlo Stiebel Eltron v kombinaci s teplovodním podlahovým vytápěním s termostatickým ovládáníma možností dálkového řízení. Nadstandardem je podlahové chlazení, které v letních měsících plnohodnotně nahrazuje klimatizaci, na kterou tak není ani potřeba samostatná příprava.


současný stav ve výstavbě
Dispozice
Již při vstupu je cítit, že dům byl navržen s důrazem na praktičnost i každodenní pohodlí. Hlavními dveřmi vstupujete do zádveří, které vytváří přirozenou nárazníkovou zónu mezi venkem a domovem. Dominantou vstupní části je masivní schodiště do patra, které interiéru dodává pevnost a charakter.



vstupní předsíň
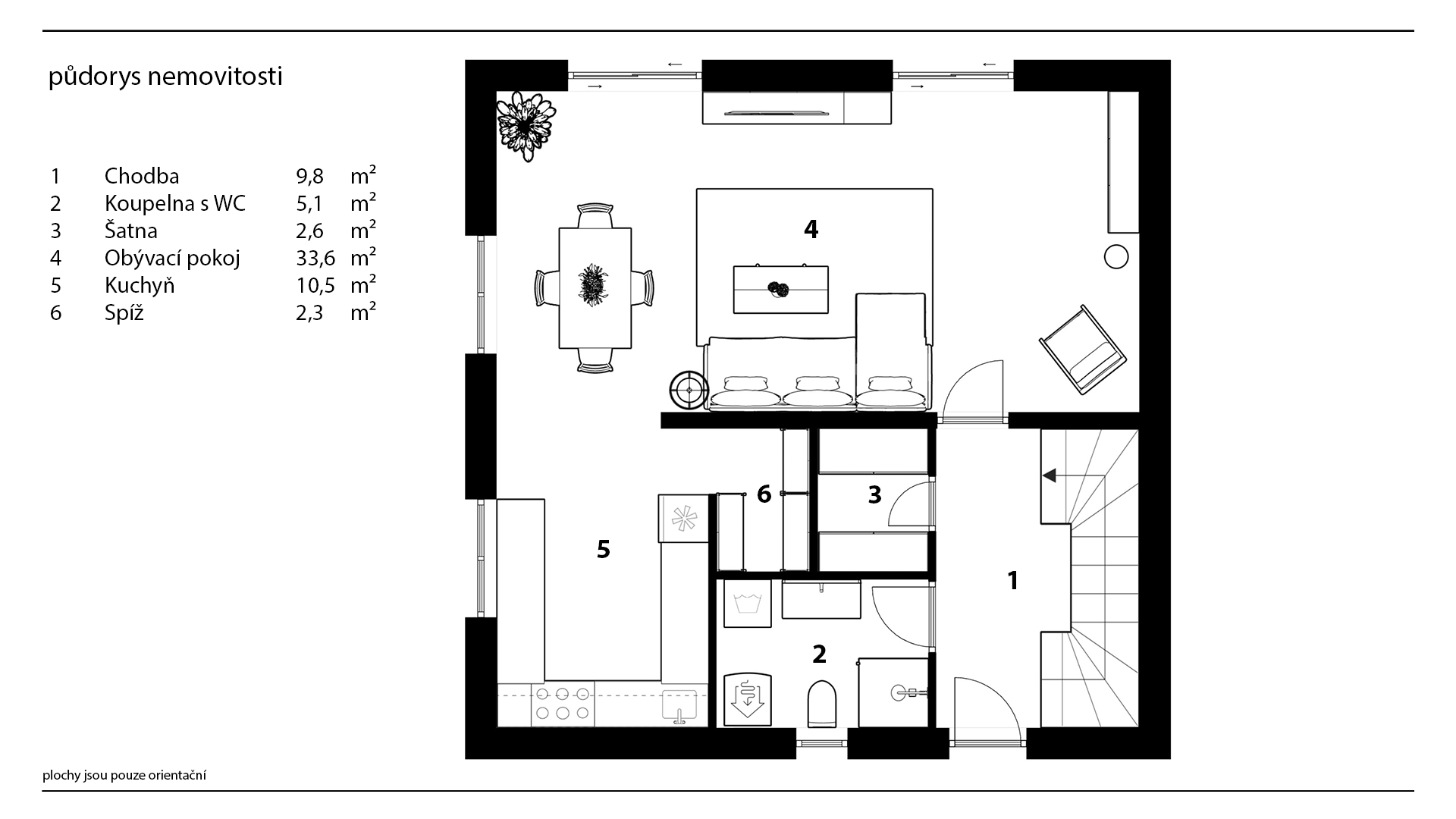
Zádveří přirozeně pokračuje v obývací pokoj o velikosti 33 m² s navazujícím velkorysým kuchyňským koutem o ploše téměř 11 m², které společně tvoří vzdušný prostor, kde se bude odehrávat většina rodinného života. Tady bude stát jídelní stůl pro dlouhé nedělní snídaně, pohovka, na které se večer zachumláte k filmu, tady se budou odehrávat první krůčky i rodinné oslavy. Na kuchyň navíc navazuje samostatná komora či špíz, která nabídne skvělé úložné možnosti pro potraviny i kuchyňské spotřebiče. Výsledkem je nejen krásný, ale i maximálně funkční prostor bez kompromisů.
Díky přímému napojení na zahradu se interiér přirozeně otevírá ven – v létě stačí otevřít dveře a obytný prostor se opticky i funkčně zvětší o terasu a zeleň za domem.



obývací pokoj otevírající se do zahrady



kuchyňský kout se spíží
Dále se v přízemí nachází koupelna se sprchovým koutem typu walk-in o rozměru 90 x 90 cm, toaletou a umyvadlem. Je přístupná ze zádveří a její součástí je i technické zázemí domu, vše elegantně a prakticky uspořádané. Obklady na stěnách mají velkoformát 60 x 60 cm v odstínu slonové kosti, dlažba je v tmavě béžové barvě stejného rozměru, což vytváří nadčasový, čistý základ, který snadno doplníte o vlastní styl.


spodní koupelna
Praktickým bonusem přízemí je také samostatná šatna – ideální nejen na sezónní oblečení, ale klidně i jako úložný prostor pro sportovní vybavení nebo věci, které nechcete mít na očích.
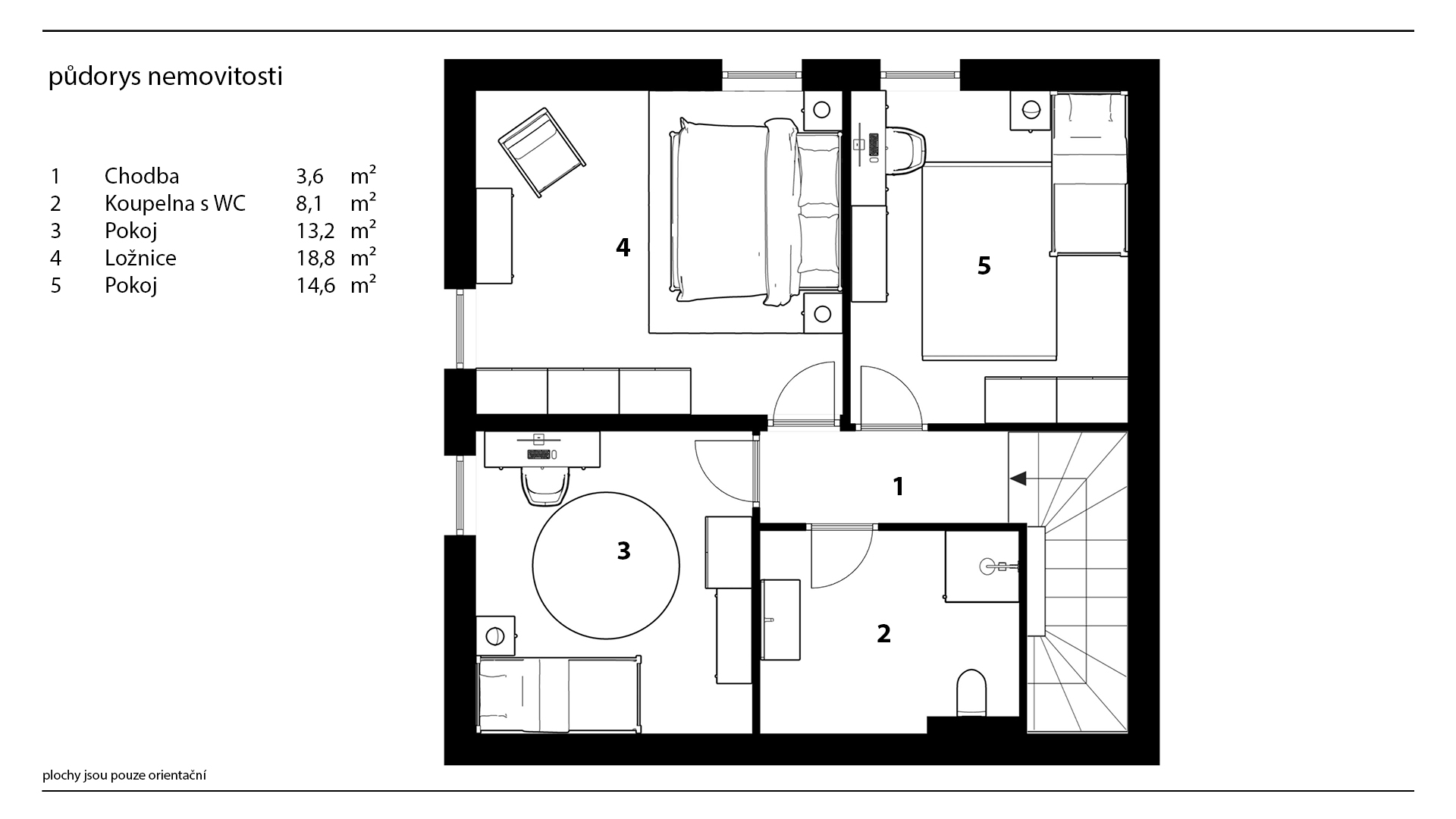
Po masivním schodišti vystoupáte do patra, které tvoří klidovou zónu domu. Nacházejí se zde tři samostatné pokoje, které dávají naprostou flexibilitu využití. Může zde vzniknout hlavní ložnice s velkou šatní skříní a výhledem do zahrady, dětský pokoj plný hraček a fantazie i pracovna, kde budete mít klid na soustředění. Pokoje jsou oddělené, takže každý člen rodiny zde najde své soukromí a vlastní prostor.



první pokoj



druhý pokoj


třetí pokoj
Horní koupelna je vybavena vanou o délce 170 cm, toaletou a umyvadlem a je designově sjednocena se spodní koupelnou stejnými obklady a dlažbou, což domu dodává jednotný a harmonický výraz. Představte si večerní koupel po dlouhém dni, klid, teplo a ticho patra odděleného od ruchu obývací části.
Celé horní podlaží působí světle, vzdušně a nabízí přesně to, co od rodinného domu očekáváte – dostatek prostoru, soukromí a pocit skutečného domova.
Půdorysy přízemí


Půdorysy prvního patra


Průkaz energetické náročnosti budovy

Tyto domy nejsou jen další developerský projekt. Jsou to promyšlené, technologicky moderní a energeticky efektivní novostavby, které spojují výhody rodinného domu se snadnou dostupností Prahy. Každá polovina dvojdomu představuje plnohodnotný rodinný dům se svou zahradou, parkováním a soukromím, připravený stát se skutečným domovem.
Pokud hledáte novostavbu, kde můžete bydlet bez kompromisů, s moderními technologiemi a jistotou kvalitního provedení, ve chvíli, kdy ještě můžete ovlivnit finální podobu detailů, právě jste ji našli. Ozvěte se a přijďte se podívat na místo, kde dnes stojí hrubá stavba, avšak brzy zde bude stát váš nový domov.