Nedaleko břehu přehrady Seč stojí chata, která má to, co jiné nemají — vlastní pozemek, dvě samostatné jednotky pod jednou střechou a klidné umístění na okraji chatařské oblasti, s lesem hned za plotem.
Ideální spojení pro rodinné zázemí i chytrou investici. Pojďte se podívat!

Oblast Seče patří dlouhodobě mezi nejoblíbenější rekreační destinace v Pardubickém kraji. Vodní nádrž Seč leží na řece Chrudimce v srdci CHKO Železné hory a nabízí koupání, vodní sporty a rozsáhlá sportovní, ubytovací i rekreační zázemí včetně autokempů. V okolí se nachází přírodní zajímavosti i historické památky, jako například zřícenina hradu Oheb či Vildštejn. Krajské město Pardubice je vzdálené pouhých 35 minut jízdy autem.
Nabízená chata je situovaná na severním břehu přehrady, pouhé dva kilometry od města Seč. Zde najdete základní občanskou vybavenost, k dispozici jsou vám obchody s potravinami, pošta, lékárna, zdravotnické středisko, knihovna a další, stejně tak jako mateřská i základní škola.
Chata stojí na samém okraji chatařské oblasti, takže díky své poloze jako poslední v řadě poskytuje dostatek soukromí. Přilehlá zahrada je orientovaná jihovýchodně a navazuje na malý háj, skrze který se dostanete během pár minut pěšky přímo k břehu přehrady.



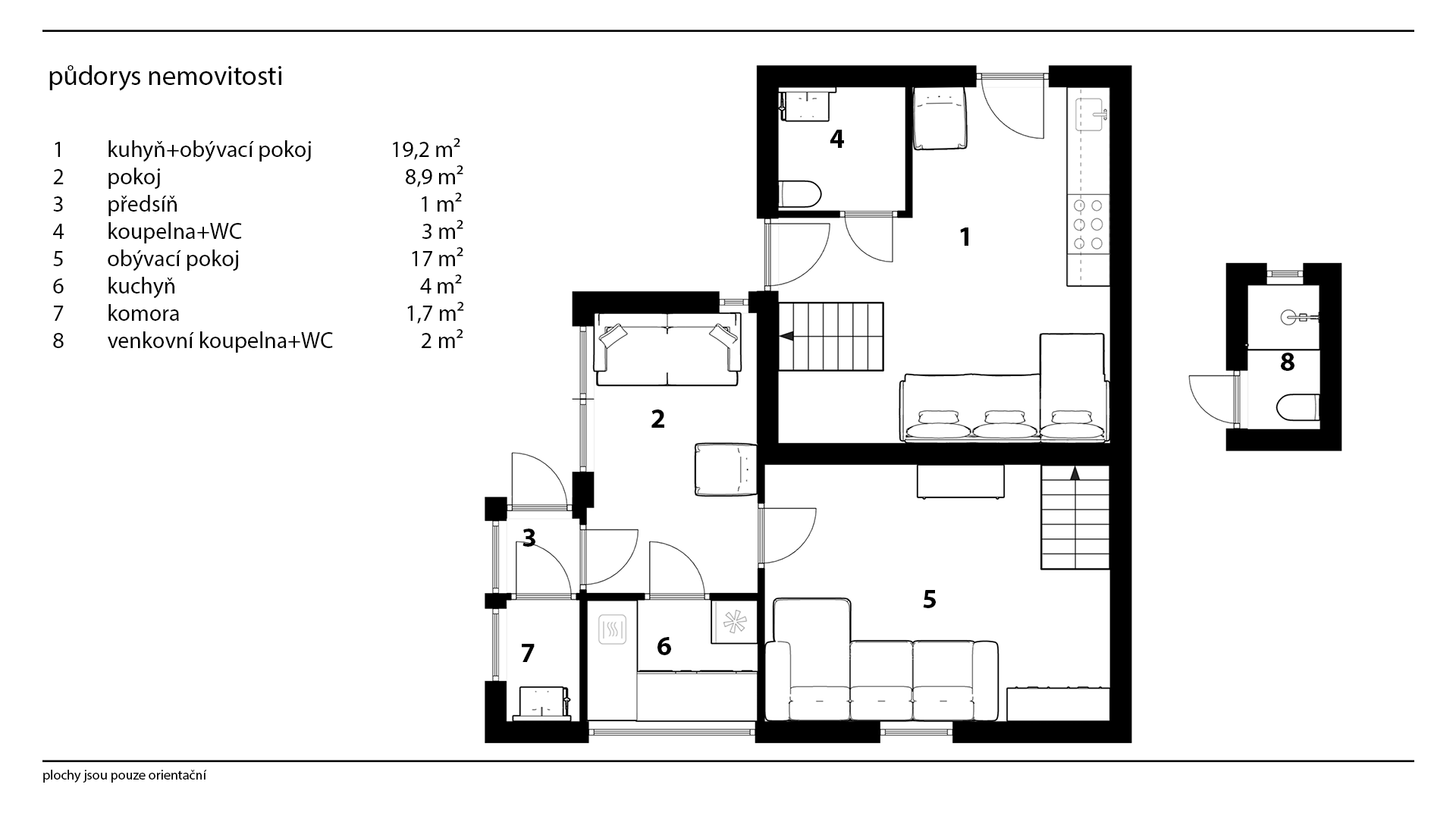
Tato kouzelná dvoupodlažní chata stojí na vlastním pozemku, což v této oblasti nebývá zvykem. Jedná se o dřevostavbu s betonovými základy, která je výjimečná svou dispozicí. Je řešená jako dvě zcela samostatné obytné jednotky s vlastním vstupem a přirozeně odděleným provozem. Pod jednou střechou tak vznikají dvě svébytná místa k odpočinku, která mohou fungovat jak spolu, tak i zcela nezávisle.
Díky tomu je chata mimořádně flexibilní. Může být perfektním zázemím pro dvě generace jedné rodiny, které chtějí být spolu, ale zároveň mít své soukromí. Stejně tak umožňuje chytrou kombinaci vlastního užívání a pronájmu – jednu část můžete využívat sami, zatímco druhá vám vydělává na provoz. A pokud hledáte vyloženě investiční příležitost, nabízí se varianta krátkodobého či sezónního pronajímání, které je v této vyhledávané rekreační oblasti velmi žádané.
Zkrátka jde o chatu, která rozšiřuje možnosti. Nejen, že je krásným útočištěm, ale přináší také praktickou hodnotu, jakou jiné chaty v okolí jednoduše nemají.


pohledy ze zahrady

vstup do větší jednotky; dveře k venkovní toaletě
Technické parametry
| Pozemek a umístění | vlastní pozemek 434 m2 na okraji chatařské oblasti |
| Počet podlaží | 2 |
| Vnitřní uspořádání | dvě samostatné obytné jednotky s vlastním vstupem |
| Dispozice a užitná plocha | menší jednotka 3+kk – 40 m2 větší jednotka 5+kk – 53 m2 |
| Příslušenství | přístřešek pro auto, dlážděná terasa, venkovní ohniště, zděný gril, udírna, dřevníky |
| Konstrukce budovy | dřevostavba na betonových základech |
| Střecha | asymetrická sedlová s plechovou krytinou |
| Okna | dřevěná |
| Voda | napojeno na veřejný vodovod |
| Ohřev vody | menší jednotka není řešeno větší jednotka 2x bojler Dražice 20 l (kuchyně a venkovní sprcha) |
| Odpady | svedeno do jímky |
| Elektřina | ano |
| Plyn | ne |
| Vytápění | menší jednotka kamna na tuhá paliva klimatizace s funkcí topení a chlazení větší jednotka není řešeno (dříve kamna na tuhá paliva, nyní pouze designová klec) |
| Parkování | přístřešek pro auto, příjezdová cesta vlastní pozemek pojme až 4 auta v řadě |
| Sklep | ano, sklepní prostor pod chatou |
| Zahrada | obehnána vzrostlým živým plotem, otevírající se jihovýchodně směrem k lesíku |
| Energetická náročnost | PENB nedodán – rekreační objekt |
| Průměrné provozní náklady na celý objekt | elektřina 3 700 Kč měsíčně voda 900 Kč měsíčně odvoz komunálního odpadu 900 Kč / rok vývoz jímky 2 500 Kč, četnost dle potřeby |
| Využití | rodinná rekreace, kombinace vlastní užívání + pronájem, vícegenerační využití |
Menší jednotka
První jednotka o užitné ploše cca 40 m² prošla modernizací a působí svěže a útulně. V přízemí vás přivítá obývací pokoj s kuchyňskou linkou vybavenou dřezem, sporákem na plynovou bombu a lednicí. Prostor, kde si snadno představíte ranní kávu s výhledem do zahrady nebo večerní posezení u kamen, když se venku stmívá. Po boku kuchyňské linky se otevírá výstup ven na zahradu, jihovýchodně směrem k lesu.



obývací pokoj s kuchyňským koutem a výstupem na zahradu
Dále se v přízemí nachází koupelna s moderním sprchovým koutem, umyvadlem a toaletou. Působí čistě a prakticky – nabízí přesně to, co potřebujete.

koupelna v přízemí
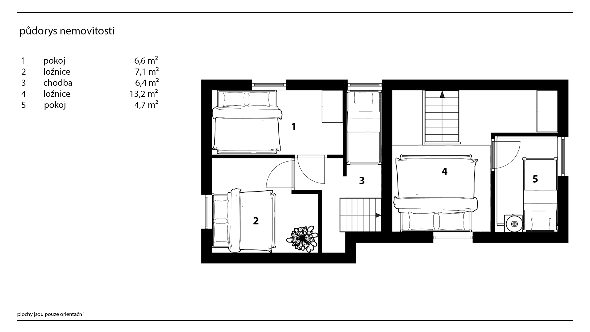
Do patra vede typické chatařské schodiště, úzké a strmější, jaké k těmto stavbám neodmyslitelně patří. Najdete tam dva malé pokojíky, které jsou oddělené pouze dispozičně, nikoliv dveřmi. Ideální místo, kde se spí déle než doma a kde rána začínají klidem.


první pokoj v patře


druhý pokoj v patře
Vytápění v této jednotce zajišťují kamna na tuhá paliva a klimatizace, která v létě prostor ochladí a v zimě přitopí. Naopak zde momentálně není zajištěn ohřev teplé vody, bojler chybí.
Větší jednotka
Druhá jednotka, větší a ve svém původním duchu, má užitnou plochu přibližně 53 m² a nese v sobě pravou atmosféru klasické chaty. Za malou předsíní vás přivítá průchozí pokoj. Díky umístění hned vedle kuchyně může skvěle posloužit jako jídelna, anebo pouhé zádveří či prostor pro uložení věcí po dni stráveném venku.


vstupní pokoj za zádveřím
U něho stojí samostatná kuchyně — jednoduchá, ale plně dostačující, vybavená taktéž dřezem, sporákem, lednicí a množstvím úložných prostor. Přímo nad dřezem se nachází bojler, který v této jednotce zajišťuje ohřev vody.

kuchyně
Hlavní obytný prostor působí přirozeně útulně. Kombinuje v sobě starší vybavení a světlo, které sem proudí velkým oknem. Právě tady dříve praskal oheň v kamnech a po večerech se hrály karty. Momentálně v místnosti stojí pouze původní klec, která dříve kamna chránila. Nový majitel si může doplnit vlastní zařízení dle preferovaného způsobu vytápění. Z obýváku se vstupuje přímo na jihozápadně orientovanou dlážděnou terasu, která se stává prodloužením interiéru. V létě sem můžete přenést celý den – od snídaně až po večerní posezení s vínem pod světlem lampionů.



obývací pokoj
Tato jednotka nemá standardní koupelnu. V zádveří se nachází pouze velké umyvadlo (vanička) s kohoutem a sprchovou hlavicí, zvenku je pak umístěna toaleta se sprchou.


vanička v zádveří a venkovní toaleta se sprchou
V patře se pak nachází tři malé pokojíky, které doslova dýchají tradicí starých chat. Každý má své kouzlo – menší šikmé stěny i nízká okna s výhledem. Zajišťují spací prostor pro dospělé, děti i hosty, stejně jako místo, kam si zalézt s knihou, když venku prší. Ale popravdě, tady by to chtělo ještě přidat trochu ruku k dílu.

první pokoj v patře


druhý pokoj v patře


třetí pokoj a chodba v patře
Půdorysy prvního podlaží


Půdorysy druhého podlaží


Pozemek a příslušenství
Právní přístup k pozemku je po obecní nezpevněné komunikaci. Zkraje je pozemek mírně svažitý, začíná vlastní dlážděnou příjezdovou pěšinou a přístřeškem pro auto. Celkem zde lze pohodlně zaparkovat až 4 auta, za sebou v řadě.

příjezdová cesta a přístřešek pro auto
Zbytek parcely se otevírá za chatou, jihovýchodně směrem k lesu. Rozkládá se tam zahrada s ohništěm, zděným venkovním grilem, udírnou a přístřešky na dřevo či techniku. Celý pozemek je obehnán vzrostlým živým plotem, který dopřává soukromí a krásně rámuje prostor mezi zahradou a volně navazujícím hájem.


zahrada otevírající se k lesu, prostor pro ohniště

venkovní gril a udírna


dlážděná terasa z boku větší jednotky
Pod chatou je navíc prostorný sklep, ideální pro uskladnění sportovních potřeb, dřeva nebo zásob.

Souhrnné informace
Technicky je chata napojena na elektřinu a veřejný vodovod, odpadní vody jsou svedeny do jímky. Vytápění je v menší jednotce řešeno kamny na tuhá paliva a současně klimatizací s funkcí topení i chlazení. Ve druhé, větší jednotce, bylo vytápění dříve taktéž řešeno kamny na tuhá paliva, zůstala zde však pouze designová klec, takže nový majitel si bude moci vybrat a doplnit kamna podle vlastních představ. Ohřev vody zajišťuje ve větší jednotce a ve venkovní sprše bojler, v menší jednotce momentálně řešení chybí.
List vlastnictví


Tato chata na Seči není jen víkendové bydlení – je to místo s atmosférou, která se těžko popisuje, ale snadno cítí.
Ať už ji využijete pro sebe, rodinu, přátele nebo jako výnosnou investici – tady získáte něco, co se koupit nedá: pocit klidu, prostoru a návratu k jednoduchosti života u vody.
Zavolejte mi a přijďte se přesvědčit na vlastní oči!