Hledáte nemovitost, která v sobě spojuje půvab venkovského života, klid přírody a prostor pro vaši vlastní realizaci?
Pak vás zaujme tato chalupa se zahradou ve Žlebských Chvalovicích – dům, který čeká na nového majitele, jež mu znovu vdechne život.



přední pohledy z hlavní ulice
Žlebské Chvalovice jsou malebná vesnička na pomezí Polabské nížiny a Železných hor. Místo, kde se lidé ještě zdraví jménem, kde se čas měří podle východu slunce a vůně posečené trávy. Obec nabízí příjemné zázemí – fotbalové a dětské hřiště, přírodní koupaliště i rodinný pivovar, kde se sousedé potkávají u večerního piva.
Vesnička má ideální polohu mezi klidem a dosažitelností. Kompletní občanskou vybavenost máte na dosah do 10 minut jízdy autem v Třemošnici, Žlebech či Ronově nad Doubravou, poblíž je také Heřmanův Městec a do krajského města Pardubic se dostanete za 40 minut.



vesnice Žlebské Chvalovice
Na zastavěné ploše cca 130 m² stojí tato chalupa s původním kouzlem, která v sobě skrývá obytnou část, kůlnu se vstupem na půdu a menší dřevník umístěný na okraji pozemku. Konstrukce je smíšená a stavba je částečně podsklepená – sklep je přístupný zvenčí a uchovává příjemný chlad, ideální pro víno nebo úrodu ze zahrady.
Chalupa je v autentickém stavu, připravená na citlivou rekonstrukci, která zachová její duši a přinese pohodlí dnešní doby.



vizualizace možného budoucího stavu po rekonstrukci
Technické parametry
| Plocha pozemku | 502 m2 | 
| Zastavěná plocha | cca 130 m2 | 
| Užitná plocha obytné části | cca 76 m2 | 
| Počet podlaží | 1 nadzemní + půda + sklep | 
| Dispozice | 2+1 | 
| Další části stavby | kůlna se vstupem na půdu, dřevník, kadibouda | 
| Stav objektu | původní, vhodný k rekonstrukci | 
| Konstrukce budovy | smíšená | 
| Střecha | sedlová, krytina taška | 
| Okna | dřevěná | 
| Voda | napojeno na veřejný vodovod (v domě pouze jeden uzávěr v koupelně, rozvody neprovedeny) | 
| Odpady | původní odpadní trubka svedena za hranici pozemku, možnost napojení na veřejnou kanalizaci vedoucí přímo za hranicí pozemku | 
| WC | kadibouda vedle objektu 😊 | 
| Elektřina | ano, zavedena do objektu | 
| Plyn | není | 
| Vytápění | kamna na tuhá paliva (v kuchyni a jednom z pokojů) | 
| Ohřev vody | dosud neřešen | 
| Energetická náročnost budovy | štítek nedodán – uvádíme G | 
| Orientace | jihozápadní | 
| Právní přístup | obecní asfaltová komunikace | 
| Občanská vybavenost v obci | dětské a fotbalové hřiště, přírodní koupaliště, rodinný pivovar | 
| Potenciál využití | rekreační chalupa, trvalé venkovské bydlení | 
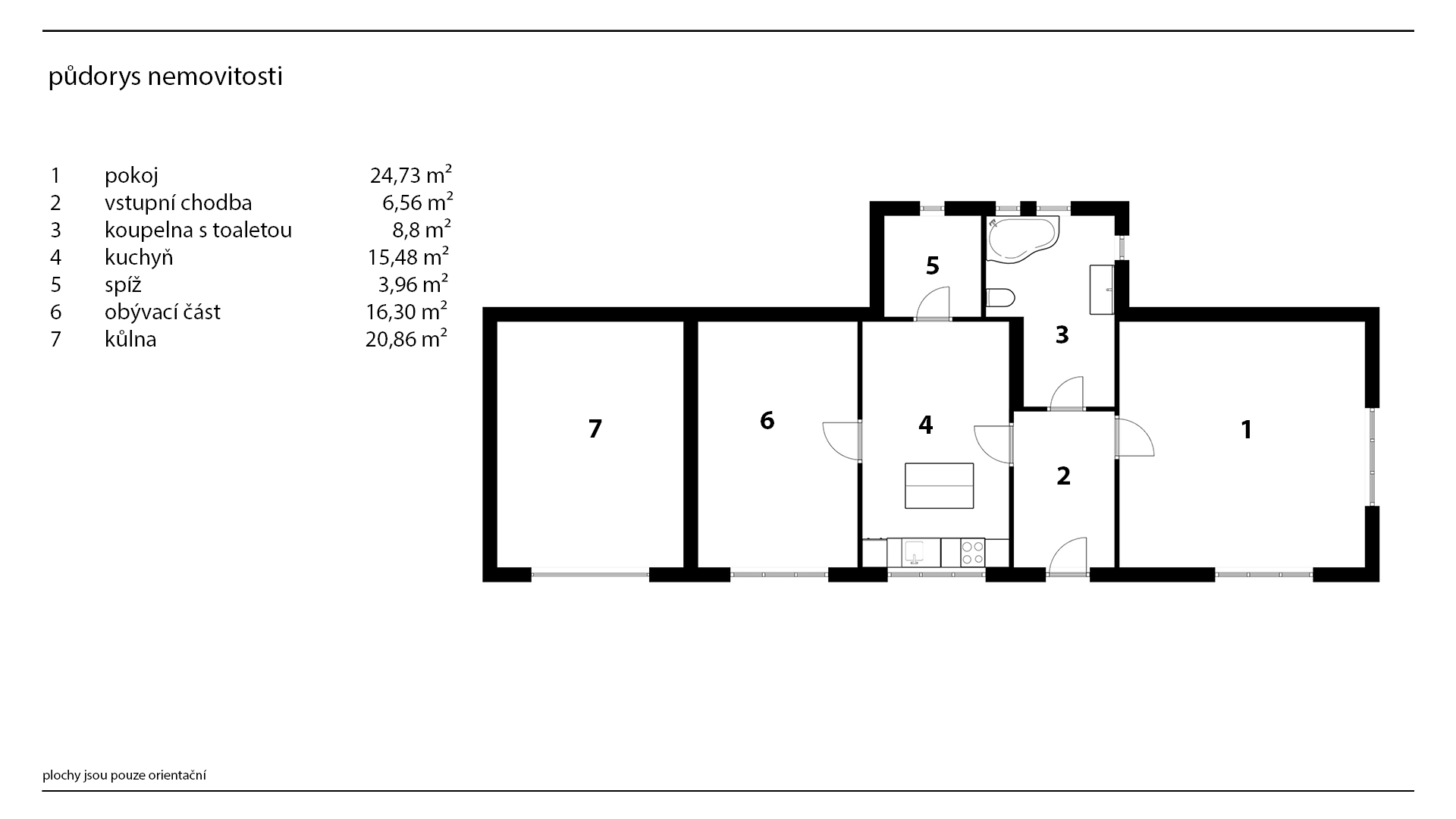
V obytné části se nachází tři místnosti, koupelna, spíž a vstupní chodba na užitné ploše cca 76 m2.
Hlavní dveře vás zavedou do chodby, odkud se vlevo vstupuje do kuchyně – prostorné místnosti s oknem do dvora. Kuchyň je dostatečně velká nejen pro kuchyňskou linku, ale i pro jídelní kout, který může být srdcem domu, místem rodinných snídaní i dlouhých večerů.



kuchyně s jídelním koutem

vizualizace možného budoucího stavu
V její zadní části se nachází spíž, ideální pro skladování potravin a domácích zásob.


spíž
Z kuchyně se prochází do zadního pokoje, komornějšího prostoru, který vybízí vytvoření ložnice či dětského pokoje – klidného místa s výhledem do dvora.


zadní pokoj ve stávajícím a možném budoucím stavu
Zpět na chodbu, napravo, se otevírá vstup do největší místnosti domu, která díky oknům na dvou stěnách působí svěže a světle. Tento pokoj má obrovský potenciál stát se útulným obývacím pokojem, centrem dění, kde se bude topit v kamnech a odpočívat po dlouhém dni.



druhý, největší pokoj, ve stávajícím a možném budoucím stavu
Poslední místností je koupelna, přístupná přímo z chodby naproti hlavnímu vchodu. Do umyvadla je přivedena voda z veřejného vodovodu, dále po domě již rozvedena není. V současnosti je koupelna v původním stavu, připravená k rekonstrukci – její umístění však umožňuje snadnou modernizaci a vytvoření plnohodnotného hygienického zázemí bez nutnosti zásadních stavebních úprav. Toaletu zde nenajdete – na tu musíte ven do nostalgické kadiboudy 😊


koupelna a vstupní chodba
Celková plocha pozemku činí 502 m². Zahrada obklopuje dům ze všech stran, poskytuje soukromí, prostor pro odpočinek i menší záhonky. Na obytnou část chalupy navazuje kůlna přístupná samostatnými vraty, ze které se vchází na půdu. Bokem pak stojí kadibouda a dřevník, který může posloužit jako sklad dřeva či technické zázemí.

zahrada


kadibouda, dřevník a kůlna
Dům je napojen na elektřinu a veřejný vodovod. Voda je do domu přivedena skrze jeden uzávěr do umyvadla v koupelně, rozvody však teprve čekají na vybudování. Odpadní systém je v původní podobě, pouze sveden za hranici pozemku, avšak s možností napojení na obecní veřejnou kanalizaci, která vede přímo vedle pozemku. Ohřev vody ani topení nejsou instalovány – teplo dosud zajišťovala dvě stará kamna, jedno v kuchyni, druhé v obývacím pokoji. Jednoduché, ale spolehlivé řešení, které se může stát inspirací pro budoucí obnovu v tradičním stylu.
Prostory domu stále dýchají historií. Na zdech jsou patrné stopy minulých let, dřevo voní surovostí a okna rámují výhled do zeleně. Je to dům, který má duši – a který nabízí možnost vytvořit z něj přesně takové místo, po jakém toužíte. Ať už půjde o rekreační chalupu pro víkendové útěky z města, nebo o trvalé venkovské bydlení s romantickým nádechem, základy tu jsou pevné a charakter nezaměnitelný.
Půdorysy nemovitosti


List vlastnictví


Tato chalupa je ideálním místem pro ty, kteří mají zájem tvořit, renovovat, přetvářet a přitom zachovat duši starého venkova. Místo, kde se sen o klidném životě v přírodě může stát skutečností.
Pokud cítíte, že právě tady by mohl začít váš nový příběh, zavolejte mi a přijďte se podívat osobně. Možná zjistíte, že tohle není jen chalupa – ale domov, který na vás celou dobu čekal.