Tento byt je hotovým, funkčním a příjemným domovem – čeká jen na to, až do něho přinesete vlastní život. Nabízí jistotu panelového domu po kompletní revitalizaci, praktickou dispozici a prostor pro rodinu, která hledá pohodlí bez nutnosti zásadních investic.

Nabízený byt se nachází v klidné obytné zástavbě ve Znojmě, na ulici Dukelských bojovníků, tedy v části města, která stojí spíše na jeho okraji – s veškerou občanskou vybaveností na dosah, ale bez ruchu historického centra. Jen pár kroků od domu je autobusová zastávka Dukelská, sídliště, díky které máte pohodlné spojení do dalších částí města.
Stejně blízko naleznete obchod s potravinami Hruška, restauraci, lékárnu či školku, kus opodál pak poštu, velký supermarket Kaufland nebo třeba bazén a spoustu dalších služeb. Za domem se navíc nachází dětské hřiště a malý skatepark, což ocení zejména rodiny s dětmi.



okolí domu

domovní chodba
Samotný dům prošel revitalizací – má novou fasádu, nová okna, nové vstupy i nový výtah. Společné prostory působí udržovaně a dům jako celek dává jasně najevo, že je o něj pečováno. Byt se nachází ve 3. patře, což znamená příjemnou kombinaci dostatečné výšky pro klid a soukromí, ale zároveň pohodlné dostupnosti díky výtahu. Vytápění je řešeno dálkově, takže odpadá starost o vlastní zdroj tepla a vše funguje jednoduše a komfortně.
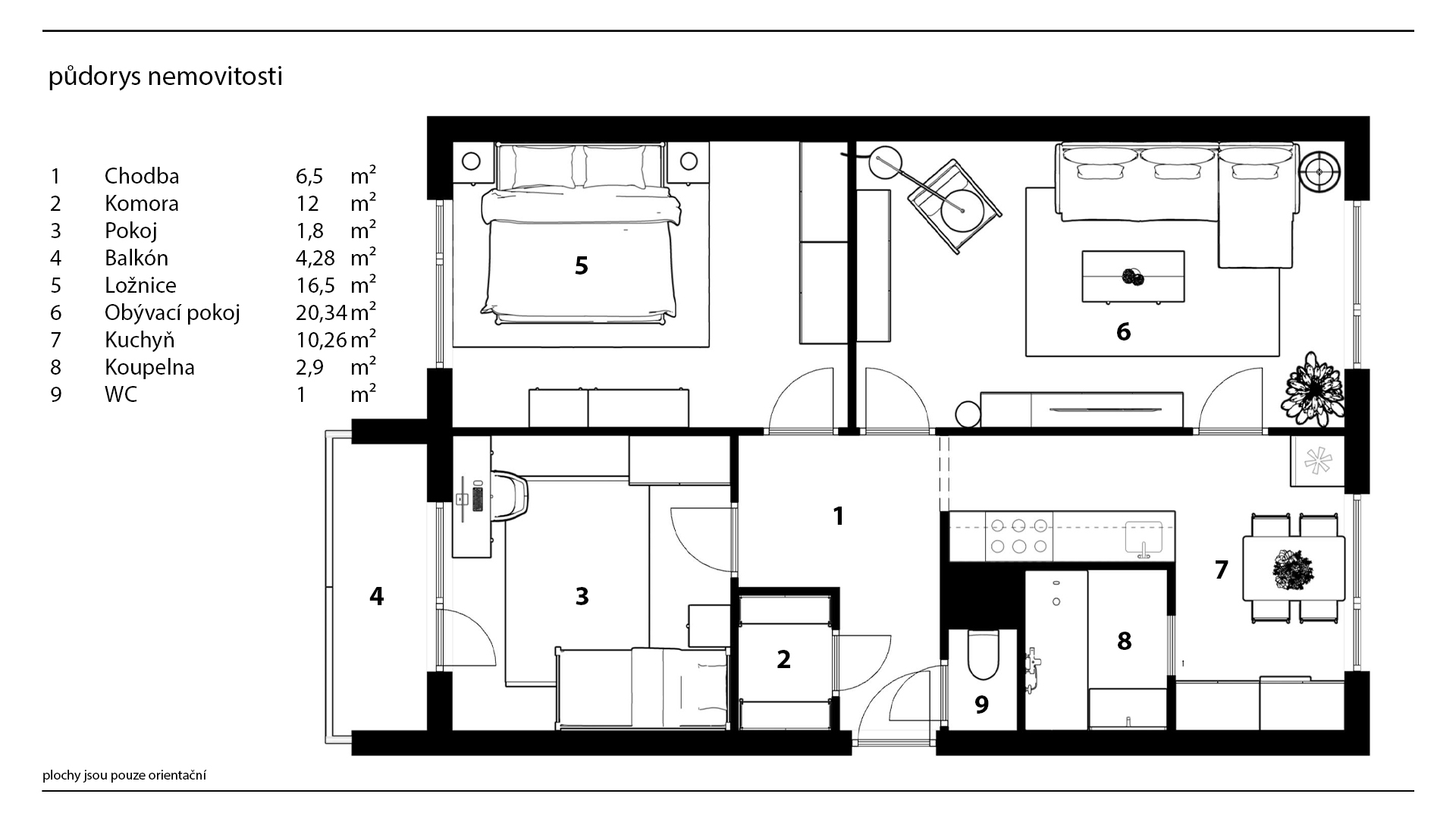
Dispozice 3+1 patří mezi nejoblíbenější a nejpraktičtější. Byt prošel rekonstrukcí přibližně před deseti lety a je v pěkném, udržovaném a nadčasovém stavu. Nepůsobí zastarale, ale zároveň si zachovává útulnost skutečného domova. K bytu náleží také sklep, který poskytne další úložný prostor na sezónní věci, sportovní vybavení nebo cokoli, co nechcete mít přímo v bytě.
Technické parametry
| Dispozice | 3+1 |
| Užitná plocha | 72 m2 |
| Příslušenství | balkon, sklep |
| Umístění jednotky | 3. patro |
| Stav jednotky | po rekonstrukci |
| Vlastnictví | osobní |
| Dům | po revitalizaci – nová zateplená fasáda, okna, vchody i výtah |
| Výtah | ano |
| Vytápění a ohřev vody | centrální, dálkově |
| Náklady na bydlení | předpis plateb pro SVJ 8 868 Kč (z toho fond oprav 2 591 Kč) + elektřina dle spotřeby |
| Energetická náročnost budovy | B – velmi úsporná |
Popis
Po vstupu do bytu vás přivítá předsíň, která přirozeně propojuje jednotlivé místnosti. Je zde dostatek prostoru pro úložné řešení – botník i místo na kabáty, takže hned u dveří může vzniknout praktické zázemí pro každodenní fungování.


předsíň
Obývací pokoj je přístupný jak z chodby, tak z kuchyně, což mu dodává příjemnou otevřenost a variabilitu. Může fungovat jako přirozené centrum bytu – místo, kde se potkává rodina. Díky propojení s kuchyní působí vzdušně a světle, a přitom si zachovává dostatek soukromí.



obývací pokoj a jeho vizualizace
Kuchyně je samostatná, řešená do tvaru L, s vlastní jídelní částí. Je to prostor, kde má všechno své místo – pracovní plocha, úložné skříňky i stůl, u kterého můžete začínat den společnou snídaní. Díky oddělení od obývací části zůstává vaření přirozeně oddělené, ale zároveň jste stále v kontaktu s děním v bytě.



kuchyně s jídelní částí
Další dva pokoje jsou samostatné a neprůchozí. Jeden z nich má navíc vlastní balkon – místo, kde si ráno vychutnáte kávu, večer sklenku vína nebo kde můžete pěstovat bylinky a květiny. Tento pokoj může sloužit jako ložnice s příjemným napojením na venkovní prostor, nebo jako dětský pokoj. Další pokoj se pak může stát druhým dětským pokojem, pracovnou nebo třeba pokojem pro hosty – podle aktuálních potřeb rodiny.



první pokoj a jeho vizualizace



balkon



druhý pokoj a jeho vizualizace
Koupelna je vybavena vanou, což oceníte při večerním relaxu i při koupání dětí. Toaleta je samostatná, což je praktické řešení zejména pro vícečlennou domácnost. Celý byt působí čistě, udržovaně a připraveně k okamžitému bydlení bez nutnosti zásadních úprav.



koupelna a toaleta
Půdorysy


Průkaz energetické náročnosti budovy
Tento byt je ideální volbou pro rodinu hledající stabilní a pohodlné bydlení, pro pár plánující budoucnost i jako investice k pronájmu. Nabízí funkční dispozici, balkon, revitalizovaný dům i klidnou lokalitu s kompletní občanskou vybaveností. Je to místo, kde můžete začít novou kapitolu – zavolejte mi a přijďte se podívat osobně.