Tento prostorný byt nabídne prostor, světlo i venkovní život ve vyhledávané pardubické lokalitě Višňovka. Spojuje moderní novostavbu z roku 2021 a velkorysou celkovou výměru 77 m² se dvěma krásnými terasami. Je to domov, který vám dá víc než jen čtyři stěny – dá vám vzduch, soukromí a místo, kde se opravdu dobře žije.



pohledy na dům
Višňovka patří dlouhodobě mezi oblíbené a žádané části Pardubic. Kombinuje klid rezidenční čtvrti s výbornou dostupností do centra města i ke kompletní občanské vybavenosti. V docházkové vzdálenosti najdete obchody, kavárny, restaurace, školy, školky i zastávky MHD. Zároveň jste během pár minut v centru Pardubic nebo na hlavních dopravních tazích. Je to lokalita, kde můžete pohodlně fungovat bez auta, ale zároveň mít vše rychle dostupné.
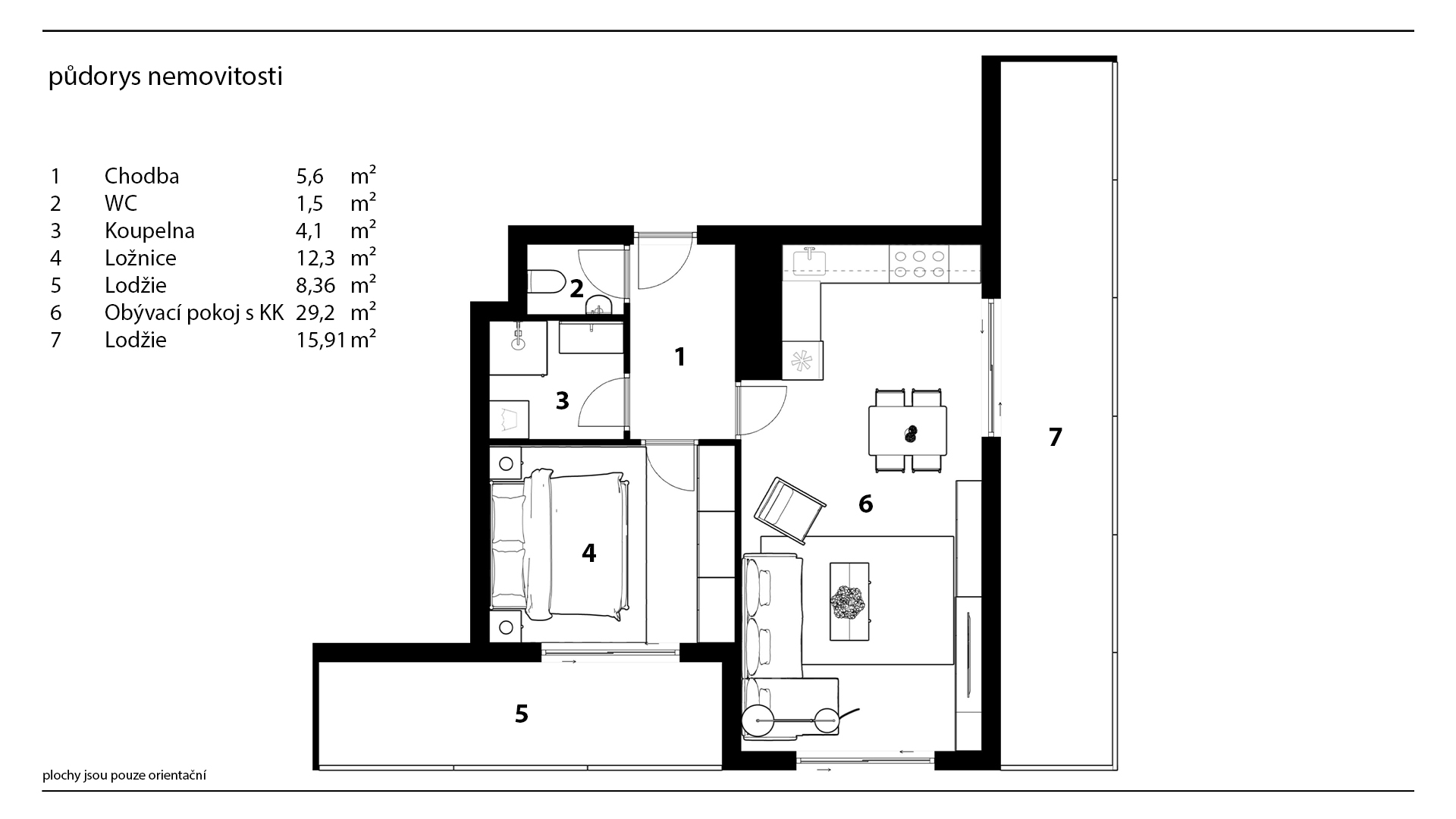
Byt se nachází v 6. nadzemním podlaží moderního domu s výtahem. Jeho celková plocha zahrnuje byt s plochou 53 m2, terasu o ploše 16 m2 a druhou terasu velkou 8 m2. Díky vyššímu patru je z teras příjemný nadhled, více světla a větší pocit soukromí. Celý byt je ve velmi pěkném stavu a připravený k okamžitému nastěhování bez nutnosti dalších investic. Dům byl dokončen v roce 2021, takže splňuje současné nároky na komfort, energetickou úspornost i moderní standard bydlení.
V případě zájmu je možné samostatně dokoupit také venkovní parkovací stání, což je v této lokalitě praktický benefit.
Technické parametry
| Dispozice | 2+kk |
| Užitná plocha | byt 52,7 m2 terasa 15,91 m2 terasa 8,36 m2 |
| Umístění jednotky | 6. NP |
| Stav jednotky | velmi dobrý |
| Orientace jednotky | obývací pokoj – západ, sever ložnice – sever |
| Stav domu | velmi dobrý, novostavba z roku 2021 |
| Výtah | ano |
| Vytápění a ohřev vody | centrální, dálkově |
| Plyn | ne |
| Měsíční náklady na bydlení | předpis plateb SVJ pro 1 osobu: 3 186 Kč (z toho fond oprav 442 Kč) elektřina dle spotřeby, cca 1 300 Kč |
| Energetická náročnost budovy | B – velmi úsporná |
| Parkování | ne, možno samostatně přikoupit venkovní parkovací stání |
Popis
Srdcem bytu je velkorysý obývací pokoj s kuchyňským koutem, který tvoří otevřený a vzdušný prostor, přirozeně prosvětlený ze dvou stran. Kuchyňský kout je elegantně zakomponovaný tak, aby byl plně funkční, ale nerušil obytnou část. Z vestavěných spotřebičů nabídne sklokeramickou varnou desku a troubu s digestoří. Z tohoto prostoru vstupujete na velkou terasu o výměře téměř 16 m², orientovanou na západ. Ta přirozeně rozšiřuje obytný prostor a dává bytu další rozměr. Představte si letní západy slunce, bylinky v květináčích a klidná posezení s výhledem na střechy okolních domů.





obývací pokoj s kuchyňským koutem

západně orientovaná terasa u obývacího pokoje
Ložnice je samostatná, klidná a dostatečně prostorná pro pohodlné útočiště. Bez problémů se sem vejde manželská postel, šatní skříň i pracovní kout. Je odtud vstup na druhou, ještě větší, severně orientovanou terasu o výměře cca 8 m². Ani zde se fantazii meze nekladou – může zde malá zahrádka či příjemné posezení, kde se ukryjete před sluncem.


ložnice a severně orientovaná terasa
Vstupní předsíň je prostorná a prakticky řešená. Nachází se zde skříň i botník a díky své velikosti působí vzdušně, nikoli stísněně. Navíc centrálně propojuje všechny místnosti, což zajišťuje logickou a pohodlnou dispozici bez zbytečných chodeb.
Koupelna je vybavena sprchovým koutem a působí moderně a čistě. Toaleta je samostatná, což zvyšuje komfort každodenního fungování, zejména pokud v bytě bydlí pár nebo přijde návštěva.


vstupní předsíň

koupelna
Půdorysy


Průkaz energetické náročnosti budovy
Tento byt je ideální volbou pro pár i jednotlivce, který chce víc prostoru, nebo jako investice v jedné z nejvyhledávanějších pardubických lokalit. Nabízí moderní dům, výtah, dvě velkorysé terasy a dispozici, která dává smysl. Pokud hledáte bydlení, které kombinuje městský život s vlastním venkovním prostorem, právě jste ho našli. Zavolejte mi a přijďte se podívat osobně.