Tento byt je otevřenou příležitostí pro toho, kdo si chce domov vytvořit podle vlastních představ. Je to prostor, který v sobě nese atmosféru starší poctivé zástavby, klid malé obce a zároveň blízkost města.

bytový dům
Byt se nachází v Rybitví, malé a klidné obci na okraji Pardubic, která si zachovává příjemnou atmosféru, ale zároveň nabízí překvapivě široké zázemí pro každodenní život. V místě najdete mateřskou i základní školu, několik středních škol, obecní knihovnu, lékařské služby včetně praktického a zubního lékaře, poštu, kadeřnictví, manikúru, pedikúru a dvě prodejny potravin. Nechybí ani restaurace, dětské hřiště, fotbalový areál, multifunkční hřiště, beach volejbal, tenisové kurty či tělocvična.
Dopravní spojení je velmi pohodlné — do Rybitví jezdí několik linek MHD z Pardubic i pravidelné autobusové spoje, a autem jste v centru města během pár minut. Díky tomu zde získáte klidné bydlení s kompletní občanskou vybaveností na místě a město doslova na dosah ruky.



bytový dům
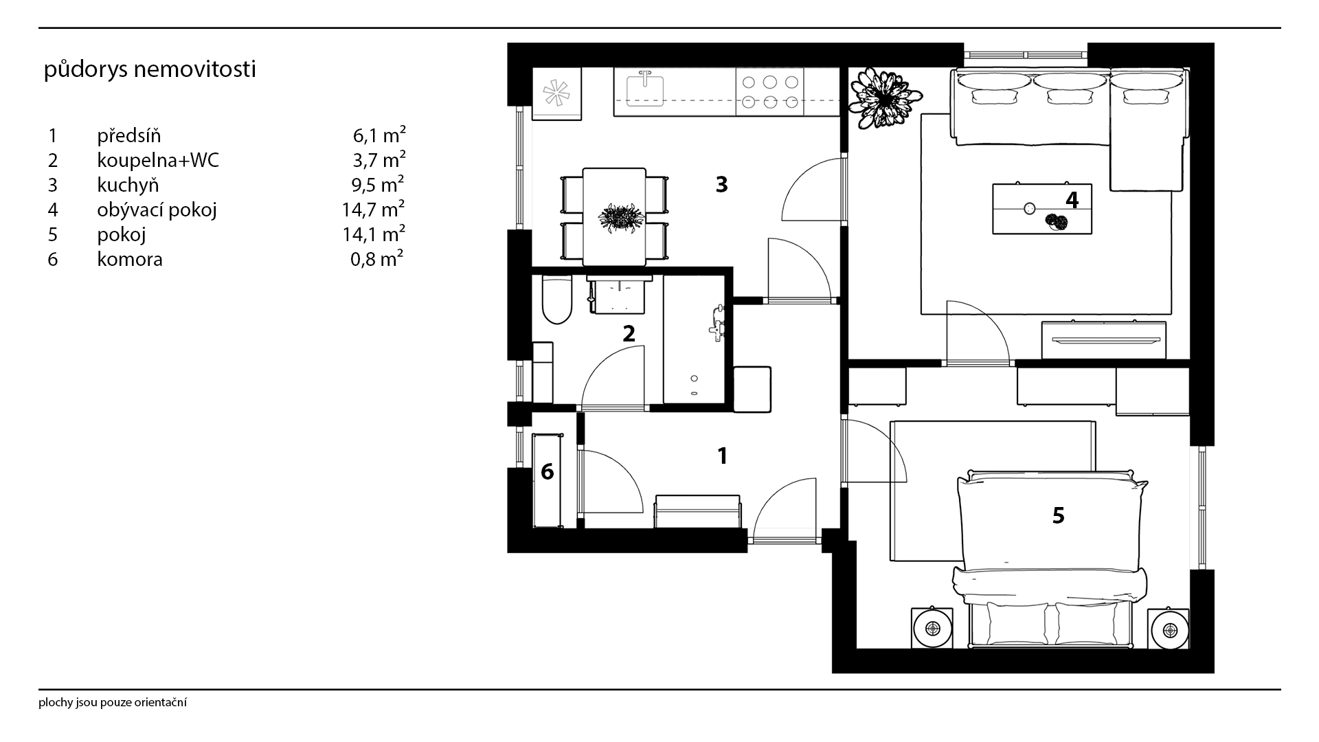
Byt o celkové výměře 57,48 m² je umístěn v prvním nadzemním podlaží staršího zděného bytového domu, které je však vyvýšené nad úroveň terénu. Je tak zaručen pocit soukromí, ale zároveň máte pohodlný přístup do bytu bez nutnosti zdolávat příliš mnoho schodů. Je v osobním vlastnictví a v původním stavu, což z něj dělá ideální projekt pro rekonstrukci. Dům samotný prošel revitalizací – má novou zateplenou fasádu, což zlepšuje tepelný komfort i celkový vzhled budovy. Okna v tomto bytě zůstala zachovalá původní dřevěná.
Technické parametry
| Celková výměra | 57,48 m2 |
| Dispozice | 2+1 |
| Orientace | S, V, J |
| Příslušenství | dva sklepy v suterénu domu |
| Stav bytu | Původní – k rekonstrukci |
| Umístění | 1. NP (zvýšené přízemí) |
| Vlastnictví | osobní |
| Dům | zděný bytový dům bez výtahu, po revitalizaci, zateplená fasáda |
| Okna | původní dřevěná |
| Elektroinstalace | původní |
| Vytápění | plyn – vafky v kuchyni |
| Ohřev vody | plyn – karma v koupelně |
| Měsíční náklady na bydlení | předpis plateb od SVJ na vodu, společnou elektřinu, správu, úklid ad. 2 378 Kč (z toho fond oprav 1 954 Kč) elektřina a plyn dle spotřeby |
| Energetická náročnost budovy | E – nehospodárná |
Duši bytu tvoří dva pokoje, které jsou samostatné, ale zároveň vzájemně průchozí, což ponechává budoucímu řešení příjemnou variabilitu. První pokoj je orientovaný na východ a přímo navazuje na kuchyň. Je tak ideálním místem pro obývací prostor – místo, kde se potká denní světlo, rodina i návštěvy. Dokážete si tu snadno představit pohodlný gauč, knihovnu nebo pracovní kout, přičemž dřevěné parkety pod nohama dodávají místnosti hřejivý, přirozený charakter a připomínají poctivou kvalitu starších bytů.



první pokoj
vizualizace možného budoucího stavu – obývací pokoj
Druhý pokoj směřuje na jih, je zalitý světlem a teplem po většinu dne. Je menší a situovaný dále od kuchyně, vybízí tak k vytvoření tichého útočiště – ložnice s postelí u okna, šatní skříní a čtecím koutkem. Díky průchodnosti mezi pokoji lze byt ponechat otevřený a vzdušný, nebo ho při rekonstrukci více oddělit podle vašich potřeb.


druhý pokoj
vizualizace možného budoucího stavu – ložnice
Kuchyně je samostatná a orientovaná na sever. Je bez kuchyňské linky, což znamená čistý list papíru – můžete si ji navrhnout přesně podle svého vkusu. Může zde vzniknout moderní kuchyň s ostrůvkem, venkovsky laděný prostor s dřevěnými prvky nebo minimalistická světlá kuchyň plná světla. Severní orientace je navíc praktická – v létě se zde nepřehřívá a vaření je tak příjemnější.


kuchyně
vizualizace možného budoucího stavu
Koupelna je společná s toaletou a čeká na kompletní proměnu. Může se z ní stát moderní koupelna se sprchovým koutem, velkým zrcadlem a elegantními obklady, nebo klidně stylový retro prostor s barevnými dlaždicemi.

koupelna s toaletou
vizualizace možného budoucího stavu
Vše propojuje vstupní prostorná předsíň. Díky své velikosti to není jenom průchozí prostor, ale místo, kde si můžete vytvořit praktické úložné zázemí – velkou šatní skříň s botníkem, věšáky apod. Tento prostor dává bytu příjemný pocit vzdušnosti již od prvního kroku dovnitř.
Navíc se hned vedle koupelny nachází ještě malá komora, která může sloužit jako praktická spíž, technická místnost nebo místo na pračku a úklidové potřeby.

předsíň, po levé straně komora


předsíň

vizualizace možného budoucího stavu
V pokojích se nacházejí původní dřevěné parkety, které dodávají interiéru charakter a mohou být krásným základem pro citlivou rekonstrukci. Chodbu s kuchyní pak pokrývá lino a v koupelně je dlažba. Vytápění bylo doposud řešeno plynovými vafkami v kuchyni, ohřev vody zajišťovala plynová karma. To vše lze při rekonstrukci modernizovat a přizpůsobit současným standardům bydlení.
K bytu náleží hned dva sklepy v suterénu domu, což je nadstandardní výhoda. Poskytují dostatek úložného prostoru na kola, sezónní věci, sportovní vybavení nebo třeba dílnu.
Tento byt není dokonalý v současném stavu – je dokonalý ve svém potenciálu. Může se stát útulným prvním bydlením pro pár či malou rodinu, anebo chytrou investicí k pronájmu díky blízkosti Pardubic. Nabízí prostor, světlo, klid a možnost vytvořit si bydlení přesně podle sebe.

3D půdorys

2D půdorys
Pokud hledáte byt, který vám dá svobodu tvořit, kde můžete vtisknout svůj styl a kde budete mít město na dosah, ale domov v klidném prostředí, pak vás tato nabídka osloví. Přijďte se podívat osobně – zavolejte mi!