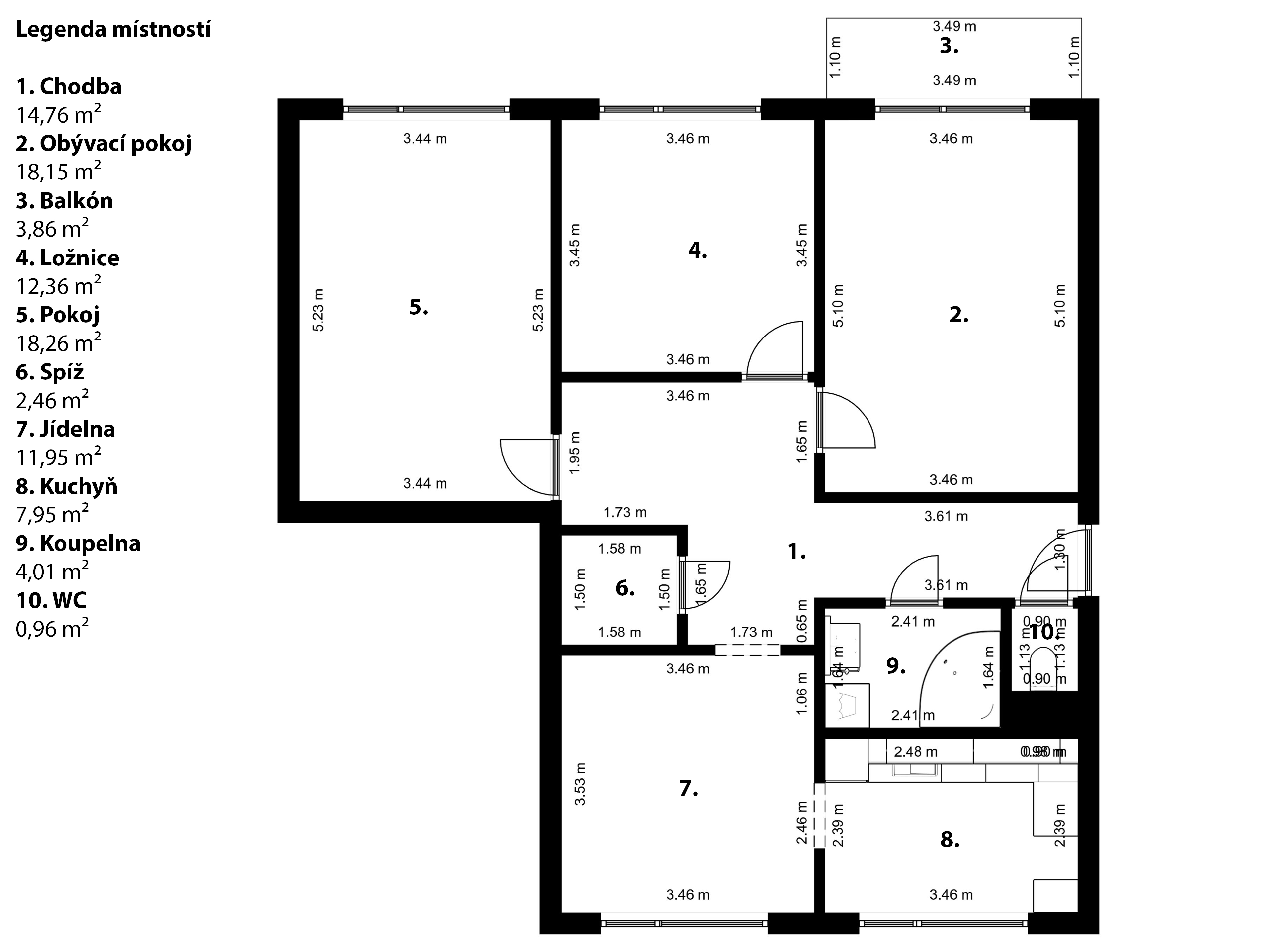
K prodeji nabízíme prostorný byt, který prošel rekonstrukcí v roce 2016. Velmi dobře dispozičně řešená bytová jednotka o výměře 90m² se nachází ve 2. nadzemním podlaží revitalizovaného panelového domu.

| Lokalita | Hradec Králové, ulice Jungmannova |
| Umístění bytu | 2. nadzemní podlaží |
| Počet podlaží domu | 5 |
| Dispozice bytu | 4+1 |
| Náklady na provoz | celkové měsíční náklady na provoz činí 6 500 Kč V nákladech se počítá s měsíční zálohou na elektřinu 1500 Kč a částkou 5000 Kč měsíčně, která zahrnuje fond oprav, vodu, teplo, výtah, úklid, odpady a energie ze společných prostor. Náklady jsou vypočítány pro čtyřčlennou rodinu. |
| PENB (en. náročnost budovy) | C (úsporná) 91,7 kWh |


Po vstupu do jednotky se ocitnete v chodbě, která se prolíná celým bytem a dostanete se z ní do všech jednotlivých místností bytu – obývací pokoj s balkónem, ložnice, dětský pokoj, jídelna, která navazuje na plně vybavenou kuchyň, komora, koupelna a samostatná toaleta. K bytu náleží prostorný sklep.


Chodba s vestavěnou skříní, která propojuje všechny místnosti v bytě



Obývací pokoj disponuje vestavěnou skříní a vstupem na balkón s výhledem do zeleně
Díky své poloze a umístění domu má ložnice i dětský pokoj dostatek světla po celý den.

Ložnice

Dětský pokoj


Pohledy pokojů od okna
Poslední částí bytu je jídelna, která navazuje na plně vybavenou kuchyni. Pokud jste vícečlenná rodina, je možné z jídelny udělat obývací část, která bude plynule navazovat na kuchyni a zbylé pokoje využít pro ložnici a dětské pokoje.



Prostorná jídelna, ze které vstupujete do kuchyně

Kuchyně

Koupelna
Poloha bytového domu je naprosto ideální. V centru města Hradce Králové jste cca za 5 min a nájezd na dálnici je vzdálen pouhých cca 10 min. V okolí domu naleznete vše, co je třeba každodenním potřebám. Obchody, služby, potraviny, autobusové zastávky, škola, školka, dětské hřiště a dostatek zeleně třeba na procházku s dětmi, či venčení domácích mazlíčků. Parkování je možné před domem.


Půdorys bytu:


PENB (průkaz energetické náročnosti budovy):
Pokud vás tento byt zaujal, neváhejte mě kontaktovat a domluvit si osobní prohlídku této nemovitosti. Budu se těšit.